Alle Preise abzgl. 2% Online Rabatt. Der Abzug erfolgt auf der Kassenseite.

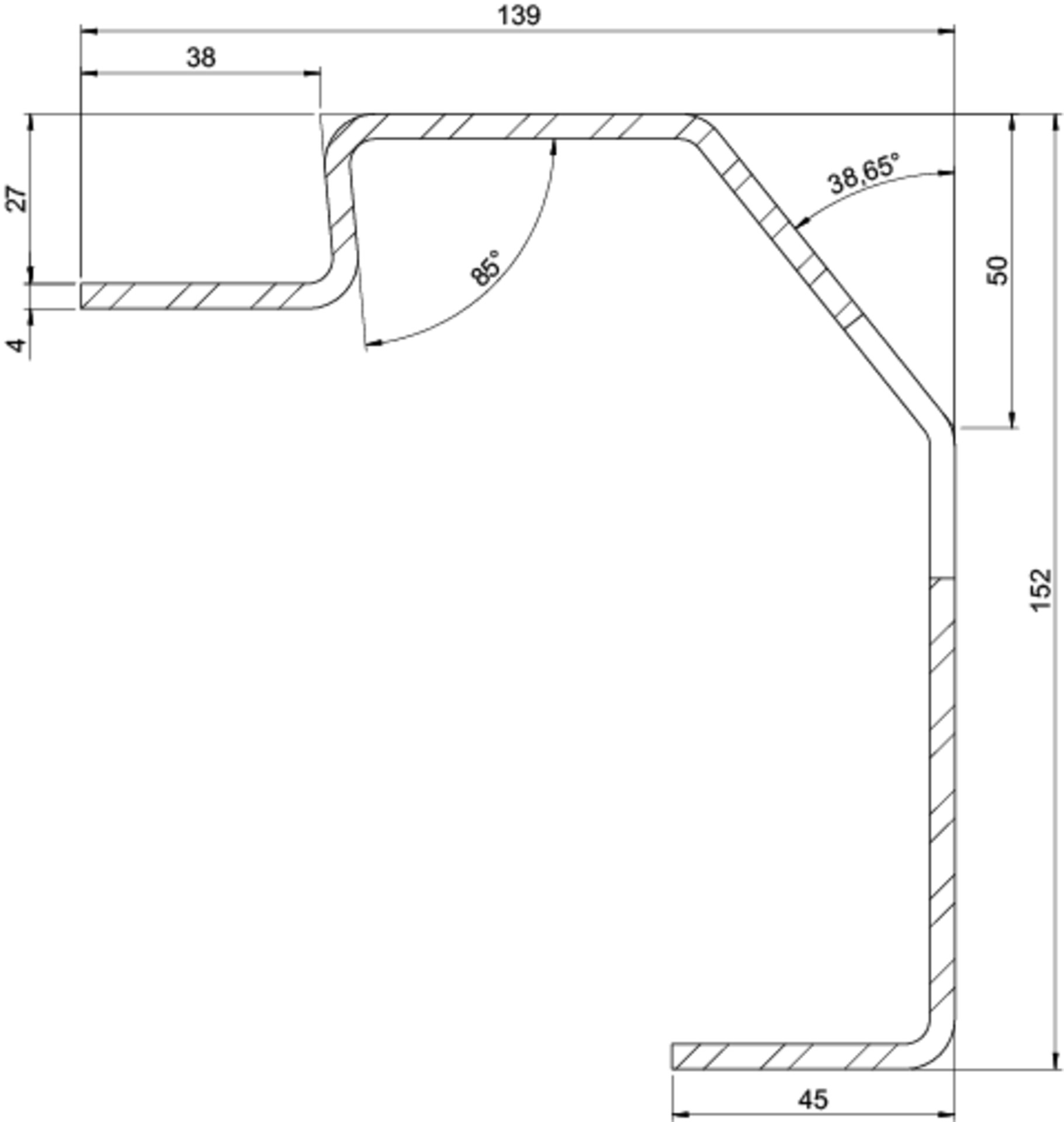
Bo.ra.pr S355MC 152/27/4/7500mm m.2Lochr

Artikel-Nr.: 218 975 144

Bitte beachten Sie für diesen Artikel den Mindestauftragswert in Höhe von 500,00 € netto.
Dieser Mindestauftragswert ist notwendig, weil es sich bei dem Artikel um Langmaterial länger als 3,5 Meter handelt. Sie haben die Möglichkeit den Mindestauftragswert zu erreichen, indem Sie weitere Artikel aus unserem gesamten Sortiment bestellen, bzw. die Mengen der Artikel im Warenkorb erhöhen.

Spezifikationen

Bodenauflage B: 27 mm
Zurrpunkte: 0 Stk
Länge: 7500 mm
Bohrloch ø: - mm
Flächenmoment 2. Grades Ix: 489,9 cm4
Flächenmoment 2. Grades Iy: 116,3 cm4
Widerstandsmoment Wx: 53,2 cm³
Widerstandsmoment Wy: 12 cm³
Gewicht ca.: 10,4 kg/Stk
Werkstoff: Stahl, S 355 MC, roh
Verpackungseinheit: 1 ST